Plant Business

본문 바로가기
Online Inquiry
메뉴열기 메뉴열기 메뉴닫기 메뉴닫기

Business Areas

Supply of software required for the production and construction of various industrial facilities

Summary

The plant business contributes to the comprehensive plant industry by supplying design software necessary for the production and construction of various industrial facilities, including steel plant facilities including POSCO, and providing maintenance services.

Major Business Fields

Key Performance/p>

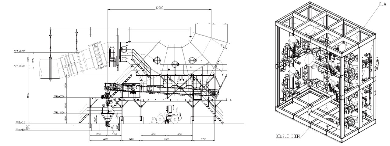
Electric furnace electric precipitator dust treatment facility

Gwangyang No. 1 Steelworks Furnace Flue Gas Treatment Capacity Improvement EC/EP Pressure Conveying Facility (18ton/hr Conveying)

Ore Dryer Capture Dust Conveying Equipment

Pohang FINEX 2nd Plant Ore Dryer Capture Dust Recycling Line Newly Established (6.2ton/hr Conveying)

CCN Mixing Center Rationalization Facility

Joseon Refractory CCN Mixing Plant Rationalization Facility (2ton/hr)


HK Solution Co.,Ltd.

HK Solution Co., Ltd. CEO : Shin Gi-Up Head Office : 38, Songdeok-ro, Daesong-myeon, Nam-gu, Pohang-si, Gyeongsangbuk-do, Republic of Korea

Business Registration Number : 822-86-00419 TEL : 054-282-1600 FAX : 054-282-1601 E-mail : hks@hksolution.co.kr

copyright © HK Solution Co., Ltd. all rights reserved.

ADMIN