플랜트 사업

본문 바로가기
온라인 상담
메뉴열기 메뉴열기 메뉴닫기 메뉴닫기

사업분야

다양한 산업설비의 생산시설 제작과 시공에 필요한 소프트웨어 공급

개요

플랜트 사업은 POSCO를 비롯한 철강 플랜트 설비를 시작으로 다양한 산업설비의 생산시설 제작과 시공에 필요한 설계 소프트웨어를 공급하고 유지보수까지 제공함으로써 종합 플랜트 산업에 이바지하고 있습니다.

주요 사업분야

주요 실적

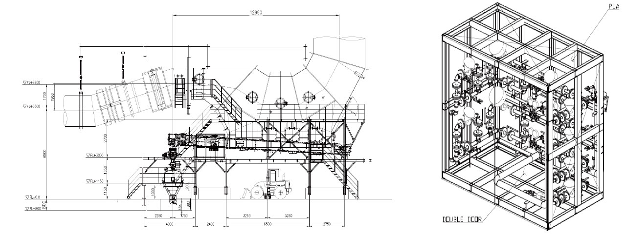
전기로 전기 집진기 Dust 처리설비

광양 1제강 전로 배가스처리능력개선 EC/EP 압송 설비 (18ton/hr 기송)

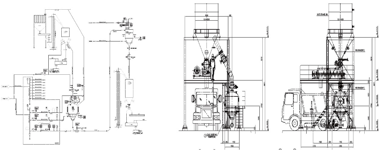
Ore Dryer 포집 Dust 기송설비

포항 FINEX 2공장 Ore Dryer 포집 Dust 재활용 Line 신설 (6.2ton/hr 기송)

CCN 혼련장 합리화 설비

조선내화 CCN 혼련장 합리화 설비 (2ton/hr)


(주)에이치케이솔루션

(주)에이치케이솔루션 대표이사 : 신기업 소재지 : 경상북도 포항시 남구 대송면 송덕로 38

사업자등록번호 : 822-86-00419 TEL : 054-282-1600 FAX : 054-282-1601 E-mail : hks@hksolution.co.kr

copyright © (주)에이치케이솔루션 all rights reserved.

관리자